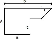
Hello, here is the irregular shape and I need to find the area of it.

I have been looking at this image for a very long time and cant find the solution to the triangle piece. What I mean is the following: a can be multiplied by b to get the square but how do I get the other piece?

(SOLVED): I did not notice the e variable. With the use of that I can now easily solve this.

I have been looking at this image for a very long time and cant find the solution to the triangle piece. What I mean is the following: a can be multiplied by b to get the square but how do I get the other piece?

(SOLVED): I did not notice the e variable. With the use of that I can now easily solve this.
Last edited: